






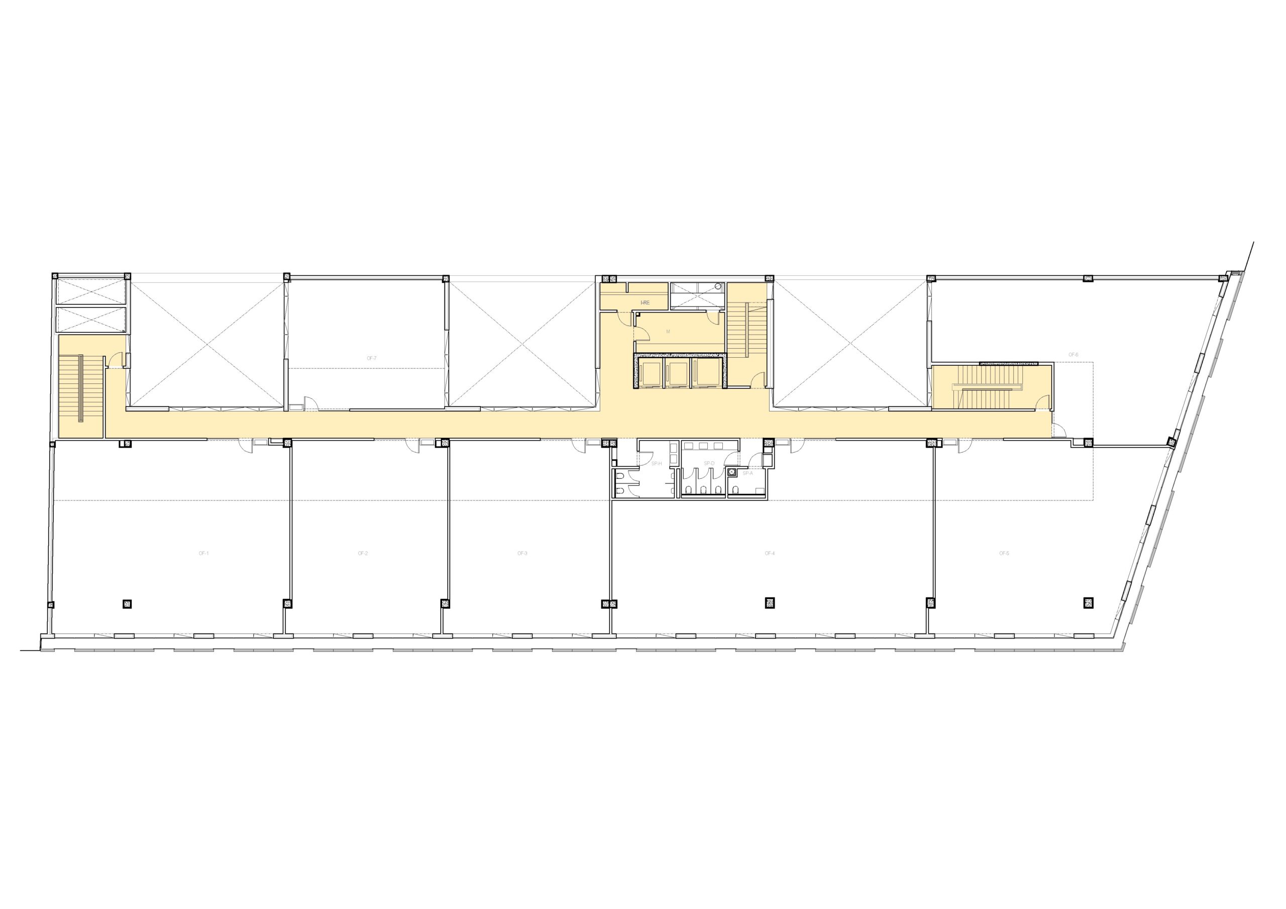
Office building, intended for permanent and temporary rental, with premises of modular surfaces, where there are common spaces, facilities and services, with centralised service management.
The standard floor plan is an open-plan space for the free layout of the office modules. The structure has large spans, with a lightened reinforced slab, which allows great freedom of distribution.
The building has a suspended façade of stretched sheet metal with openings facing the glazed areas of the interior façade, which can be opened by firefighters. The metal façade is separated from the interior façade by a walkway, accessible by maintenance personnel. This is an industrialised enclosure, which is quick to build.
The solution adopted aims to combine an industrial image characteristic of the area with a certain technological component, achieving good climate and lighting control within the interior, and always underpinned by an essentially clear and ordered image.
Type of project
Offices
Year
2006-2010 / 2021-2022
Surface area
12.200 m2
Collaborators
bAR arquitectura i disseny (architectural collaboration), Pamias (facilities design), JFG (structural design), BlackBox (renderings)
Customer
Inmobiliaria Barnamol
Location
22@ Barcelona
Photo
Rafael Vargas